
Având ca scop dezvoltarea zonei de lucru a barmanului, am decis crearea unor linii de bar complete, compacte și autonome. Fiecare zonă asigură tot ce-i este necesar personalului de bar, astfel încât acesta sa fie cât mai eficient și productiv. Modulele oferă un amestec unic de stil și funcționalitate, rezultând cel mai optim proces de lucru.
Fie că este un bar cu activitate în timpul zilei, seară sau noapte, concepem barul pentru ca mediul de lucru să fie cât mai simplu și mai puțin stresant, crescând astfel fluxul de vanzari. Gama de stații, module și accesorii oferă opțiuni multiple pentru a crea linia de bar perfectă, pe gustul si dimensiunile dorite.
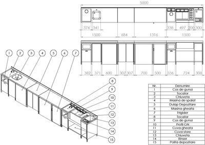
Echipa noastră este formată din consultanți Horeca, ingineri proiectanți, designeri, sudori inox și furnizori specializați. In această configurație putem oferim clienților noștri următoarele soluții de bar, din inox :
Soluțiile oferite de noi combină ergonomia și funcționalitatea cu finisaje de excepție, respectând ultimele tehnologii și standarde internaționale de calitate și siguranță, astfel încât să folosiți produsele noastre pentru o perioadă indelungată de timp.

This website uses cookies. By continuing to use this site, you accept our use of cookies. Privacy Policy